|
||||||
| 種目 | 所在地 | 土地面積 建物面積 |
構造 間取 |
築年月 引渡時期 |
土地権利 | |
|---|---|---|---|---|---|---|
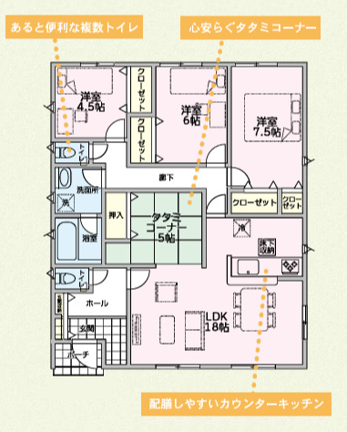
| 新築戸建 | 伊勢崎市田部井町 | 281.18m2 ( 85.05坪 ) 95.58m2 ( 28.91坪 ) |
木造 3LDK+タタミコーナー5 |
R08/04 相談 |
所有権 | |
伊勢崎市田部井町新築住宅 ☆仲介手数料無料☆ 【4号棟】 全4棟、閑静な住環境、駐車3台可(車種による)!コスモス田部井店至近でお買い物便利、桐生・伊勢崎線至近で桐生方面への交通アクセス良好地です(*^^)現地をご覧になってみませんか。
※掲載されている物件データが現状と異なる場合は現状を優先します
地図
|
|
【位置情報に関するご注意】:現在位置情報は精査中の為、正確ではない場合があります。あくまで参考程度の情報となります。
![]()
- 株式会社クリエートハウジング
- TEL:0270-30-3833
- FAX:0270-30-3877

















