|
||||||
| 種目 | 所在地 | 土地面積 建物面積 |
構造 間取 |
築年月 引渡時期 |
土地権利 | |
|---|---|---|---|---|---|---|
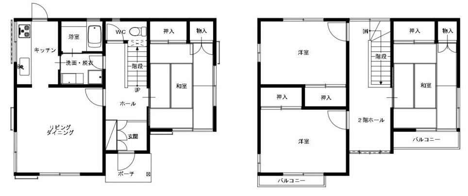
| 中古戸建 | 伊勢崎市波志江町 | 192.02m2 ( 58.08坪 ) 111.92m2 ( 33.85坪 ) |
軽量鉄骨造 4LDK |
S57/08 相談 |
所有権 | |
伊勢崎市波志江町中古住宅 人気の学区、閑静な住宅街、南道路で日当り良好!三郷小学校まで徒歩約8分、第三中学校まで徒歩約6分で通学に安心の立地です。スギ薬局まで徒歩約4分、フォリオ安堀まで車で約4分でお買い物に便利。現地をご覧になってみませんか。
※掲載されている物件データが現状と異なる場合は現状を優先します
地図
|
|
【位置情報に関するご注意】:現在位置情報は精査中の為、正確ではない場合があります。あくまで参考程度の情報となります。
![]()
- 株式会社クリエートハウジング
- TEL:0270-30-3833
- FAX:0270-30-3877
- >>関連の地域・地区から検索
- 物件一覧 -- 伊勢崎(中学校別) 第三中学校 -- 間取一覧 -- 写真一覧 -- 地図一覧 -- 地域一覧
- 物件一覧 -- 伊勢崎(小学校別) 三郷小学校 -- 間取一覧 -- 写真一覧 -- 地図一覧 -- 地域一覧
- >>カテゴリから検索
- 中古住宅|南道路住宅|1000万円以上1500万円以下 住宅















