伊勢崎市宮子町

価格 2,400万円

1/10
Point

伊勢崎市宮子町中古住宅   人気の宮子町、オール電化住宅!敷地広々約77坪、整形地、ミスターマックスやロピア至近でお買い物便利、前橋方面への交通アクセス良好地です(≧▽≦)現地をご覧になってみませんか。

物件番号「15112」をお伝えください。

電話でお問合せ LINEでお問合せ

物件情報

価格 2,400万円
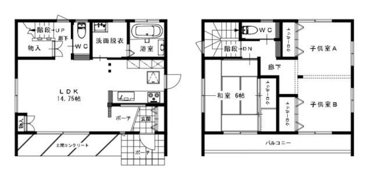
間取 3LDK
間取詳細 (1階)LDK14.75、(2階)和6、(2階)洋+洋
所在地
伊勢崎市宮子町 地図
学区 宮郷小学校 1,800m/宮郷中学校 1,200m
最寄駅 JR駒形駅まで 車7分 3,000m
種目 中古戸建
土地面積 257.6m²
建物面積 79.48m²
建ぺい率 60%
容積率 200%
建物構造 木造
地目 宅地
土地権利 所有権
借地料 -
用途地域 第一種中高層住居専用地域
取引態様 仲介
築年月 2014/03
引渡時期 相談
諸費用
接道 東 公道
特色 公営水道、浄化槽、電気、オール電化、駐車場   ■都市ガス引込み可   ※契約不適合責任免責   ※現況にてお引き渡しとなります。
コメント 伊勢崎市宮子町中古住宅   人気の宮子町、オール電化住宅!敷地広々約77坪、整形地、ミスターマックスやロピア至近でお買い物便利、前橋方面への交通アクセス良好地です(≧▽≦)現地をご覧になってみませんか。
※掲載されている物件データが現状と異なる場合は現状を優先します。

更新情報

情報更新日 2025年10月13日
次回更新予定日 2025年10月14日
取引条件有効期限 2025年10月26日

物件番号「15112」をお伝えください。

電話でお問合せ LINEでお問合せ
電話 メール LINE
メールでお問合せ
OK